Tømmerup Efterskole udvider med otte nye værelser

Der skal være plads til flere elever på Tømmerup Efterskole, derfor bygger man i øjeblikket nye elevværelser. 

Tømmerup Efterskole udvider med otte nye værelser
Der bliver bygget ny elevværelser på Tømmerup Efterskole. Foto: Tømmerup Efterskole
Af Charlotte Koefoed  charlotte@tv-kalundborg.dk

På Tømmerup Efterskole har man i flere år gået med tanker om at udvide – og det er der en forklaring på.

Forstander på Tømmerup Efterskole, Lars Allerup Jacobsen, forklarer, at en udvidelse af elevtallet vil styrke økonomien, så man kan blive ved med at udvikle skolen.

"I foråret 2024 fik vi konkrete tanker og idéer til, hvordan det kunne lade sig gøre, og vi er nu klar til at udvide elevtallet med otte elever, så vi fra august starter op med 102 elever," siger han.

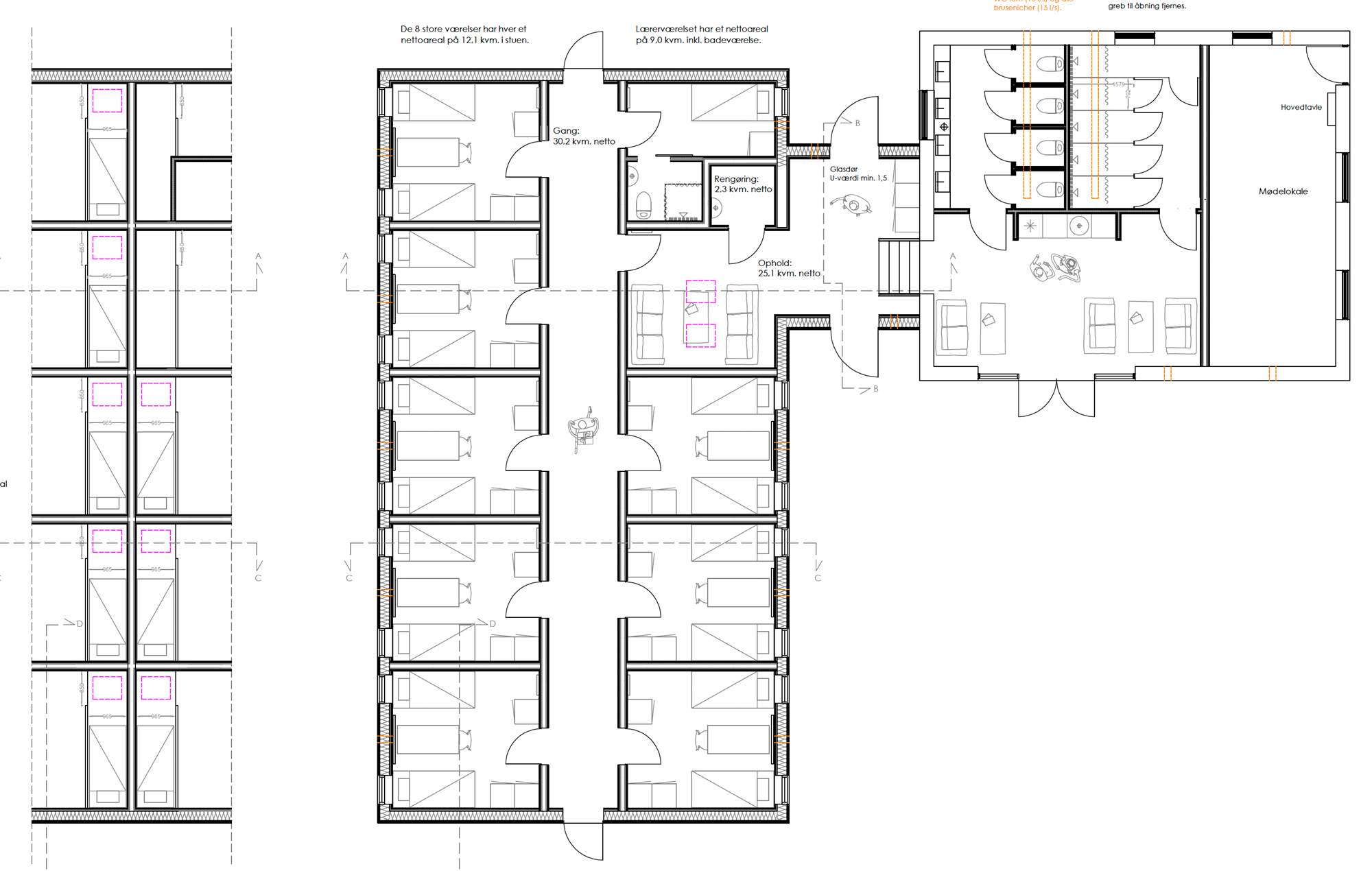
Derfor bygges der lige nu en ny elevfløj med otte tremandsværelser, og den ekstra plads vil blive brugt til at aflaste skolens øvrige værelser, som er godt fyldt op.

"Det vil derfor give lidt mere plads til eleverne – og vi kan ikke være mere end 102 elever i vores spisesal," siger Lars Allerup Jacobsen.

Elevfløjen bygges sammen med en gammel tjenestebolig, som bliver totalrenoveret indvendigt. Her bliver der bade- og toiletfaciliteter samt opholdsrum.

"I oktober 2024 sendte vi en byggeansøgning til Kalundborg Kommune. I januar 2026 fik vi endelig byggetilladelsen i hus," fortæller Lars Allerup Jacobsen.

Byggeriet har været i udbud, hvor Illemann Tømrer- og Snedkerfirma har vundet hovedentreprisen. Elevfløjen er tegnet af arkitektfirmaet Anneks.

Byggeriet skal stå færdigt lørdag den 8. august, hvor man starter næste elevhold.

Del