Huset Askman er snart i mål
Der er blevet renset tusindvis af gule mursten, knoklet løs med at søge fonde, holdt uendelige rækker af møder, men snart står Huset Askman klar. Et hus, som tilhører hele Bjergsted.
Af Charlotte Koefoed charlotte@tv-kalundborg.dk
Det ser ikke umiddelbart ud som om Bjergsteds nye - og længe ventet - forsamlingssted snart er klar til start. Men det er det. Huset Askman rejser sig som en fugl Føniks.
En rå og kold januardag har byggegruppens Mogens Jensen og Charlotte Pehn inviteret på en rundtur i de noget golde haller, der om få måneder er klar til at omfavne og tage kærligt imod Bjergsteds beboere.
Huset Askman er en historie om kærlighed til en by og en by, der elsker huset tilbage.
Kunstneren Lars Askman levede og boede i huset i mange år, og byens borgere kom på besøg og hilste på. Kort sagt var der højt til loftet i huset, der ligger på Bjergsted Byvej 26 og allerede tilbage i 2018 testamenterede Lars Askman huset til Bjergsted.
Han døde i 2023, og så måtte byen smøge ærmerne op og gå i gang med at skabe Huset Askman - et hus for fællesskab og kreativitet.
“Da vi fik nøglerne i januar 2024 kunne vi jo godt se, at der var masser at gå i gang med. Hele huset skulle renoveres fra top til tå, før vi kunne tage det i brug,” fortæller Mogens Jensen, der bor et par huse fra Askmans og som er gået aktivt ind i det store arbejde med at skaffe penge til en totalrenovering og til at samle byen omkring projektet.

Der er blevet lavet om på rumfordelingen i stueetagen og flyttet store jernsøjler. Foto: Charlotte Koefoed
Charlotte Pehn er også en del af den firemands store byggegruppe, der har taget slæbet med at få den store bygning renoveret. En forening for Huset Askman blev stiftet - som en undergruppe til Bjergsted Beboerforening, og så gik arbejdet ellers i gang.
En fast del af renoveringen har været fællesmøder, hvor hele byen har kunnet give deres besyv med i de beslutninger, der er taget om huset. Og det gælder både renoveringen, samt anvendelsen.
En gruppe søgte fonde, og de er kommet i mål med at skaffe over 10 millioner.
De mange penge er blevet brugt til at totalrenovere huset og til arkitekter, håndværkere og så alt det løse, som uforudsete udgifter.

Mogens Jensen, tømrer Jakob Hornbæk Dahlstrøm fra Åvang, der har vundet renoveringsudbuddet, og Charlotte Pehn. Foto: Charlotte Koefoed
Huset har fået nyt tag, dog i form af brugte tagsten fra Rødovre Gymnasium, for genbrug og bæredygtighed er noget, man går op i i Huset Askman.
“Vi har forsøgt at genbruge alt, der kunne genbruges, men for eksempel betondækket var alt for omkostningsfuldt at bryde op og støbe nyt, så her fandt vi en anden løsning,” fortæller Charlotte Pehn.
Overraskelser undervejs
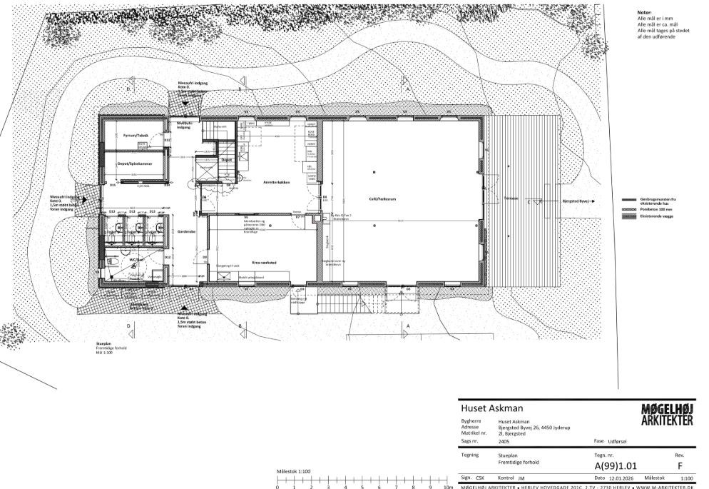
Der er lavet ny rumfordeling i huset, der før bar præg af at have været en industribygning, der er renset for asbest, som var en kedelig overraskelse i renoveringsprocessen. Der er kommet solceller på taget, ovenlysvinduer på 1. salen på 170 kvadratmeter, som skal bruges til udlejning i form af foredrag, kurser, koncerter og andet, mens stueetagen er forbeholdt medlemmerne af Bjergsted Beboerforening, som via en kode kan komme og gå frit i huset.
Her skal køkkenet etableres, forklarer Mogens Jensen. Foto: Charlotte Koefoed
Der skal etableres gulvvarme i hele stueetagen, og da man gik i gang med at etablere teknikrummet, fandt håndværkerne ud af, at gavlvæggen ikke havde det så godt.
“Den ville ganske enkelt vælte, hvis vi begyndte at gøre noget ved den, så her måtte vi i stedet for finde en anden løsning. Det blev en tilbygning i træ, som vi nu er ganske godt tilfredse med,” siger Mogens Jensen.
En olieforurening var også med til både at forsinke og fordyre renoveringen.
Tusindvis af mursten
Som nævnt er bæredygtighed vigtig for Huset Askman. Derfor har man i forbindelse med, at man har ændret rumfordelingen i huset, renset de gamle mursten af, så de kunne bruges et andet sted i huset. En opgave, som byens borgere har taget til sig.
“De har simpelthen renset i tusindvis af mursten, og det har de gjort helt frivilligt. En kæmpe hjælp og et kæmpe arbejde,” siger Mogens Jensen.
Man bruger materialer som kalkmørtel, træfiberisolering, og som supplement til gulvvarmen kommer husets gamle brændeovn op igen, plus en mere på førstesalen.
Kuglerammen markerer sponsorer
Grunden, Huset Askman ligger på, er ikke voldsomt stor, men der bliver etableret en sti om til den nye hovedindgang, der ligger på landsiden af huset. Lige nu er området indhegnet, og håndværkerne fylder med materialer og lignende.
Men hegnet har også fået en kugleramme.

En stor kugleramme på hegnet fortæller, hvor mange sponsorer, man er nået op på. Foto: Charlotte Koefoed
Her tæller man nemlig sponsorer, der mod et beløb på 100 kroner om måneden i to år vil være med til at skubbe huset i gang.
“Lige nu er der 65, der har forpligtet sig. Det er så fantastisk. Vi er virkelig glade,” siger Charlotte Pehn.
Planen var oprindeligt, at huset skulle stå klar til brug i efteråret 2025, men byens borgere må nok vente et par måneder endnu, før huset skal slå dørene op